Authentic stone cottage in East Morvan
139 000 €
Ref #: CH5575L
Estate agency fees are paid by the vendor
Located in a very quiet valley of the Morvan Natural Park, just outside the village of Barnay, this sympathetic 3-bedroom stone farmhouse surrounded by nature, woods and fields, is ideal for peace seekers and nature lovers.
This solidly built house has undergone several improvements over the last 10 years; the roof structure was partly renewed 10 years ago and in good condition, the property has mostly double glazed window frames, the septic tank is up to standard, a new solid wood carport has been built for 2 cars, a new top quality Frohling wood central heating system was installed 1 year ago.
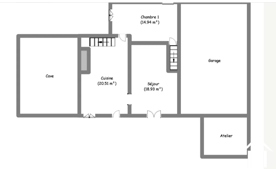
On the ground floor; entrance/full kitchen, lounge, laundry room with cupboards. Garage/workshop and old turret currently used as storage. The property is partly cellared.
First floor: 3 bedrooms with wardrobes, bathroom with shower, toilet with shower and an attic that still needs to be made habitable.
Autun at 16 km, Saulieu at 25 km.
In short, a house ready to make your Burgundy dream come true.
Contact us soon for a viewing, also on weekends!
A file on the environment risks for this property is available at first demand. It can also be found by looking up the village on this website georisques.gouv.fr
A file on the environment risks for this property is available at first demand. It can also be found by looking up the village on this website georisques.gouv.fr
Property# CH5575L
Quality
Total rooms
5
Bedrooms
3 Bedrooms
Living area m²
119
Plot size (m²)
658
Living room size (m²)
24
Cellar size (m²)
30
Bathrooms
2
Toilets
2
Construction year
1850
Situation
Situation
Countryside
Neighbours
Detached
Other situation
Quiet area
Orientation
South
Nearest railway station
Le Creusot TGV
Distance Railway station (km.)
50
Airport at
lyon
Airport Distance
175
Apartment details
Floor
1
Extra Features
Estate council tax
474 €
Parking for number of cars
3
Exterior features
(Wine) Cellar, Terrace, Work shed / Barn, Enclosed garden, Wood storage, Work shop
Other property features
Broadband available
Energy
Heating
Wood (chip) fired
Drainage
individual
Other features energy
Electricity connected, Mains water connected
Energy and climate performance
High climate efficiency
A
B
C
D
Consumption
(main energy source)
emissions
201
kWh/m2/an
5*
kg CO2/m3/an
E
F
G
Estimated annual energy expenditure for average use of the property:
From 860 € to 1 220 € expenditure per year
Average energy prices as indexed per 05-09-2033 (standing charges included)
Climate performance
low CO2 emissions
A
emissions
5*
kg CO2/m3/an
B
C
D
E
F
G

Person managing this property
Chris Van Halewijn
Téléphone: +33 7 87 18 65 56
E.I. Agent Commercial RSC Chalon s/ Saône 880 680 848
Morvan Lakes
Saône et Loire
-
Beautiful landscapes
-
Rich culture
-
Year-round activities
-
Easy acces
-
Well defined seasons
-
Renowned food and fine wines